ARCH 231 Anatomy of Buildings
UIUC Architecture Annex (INTERVENTION)
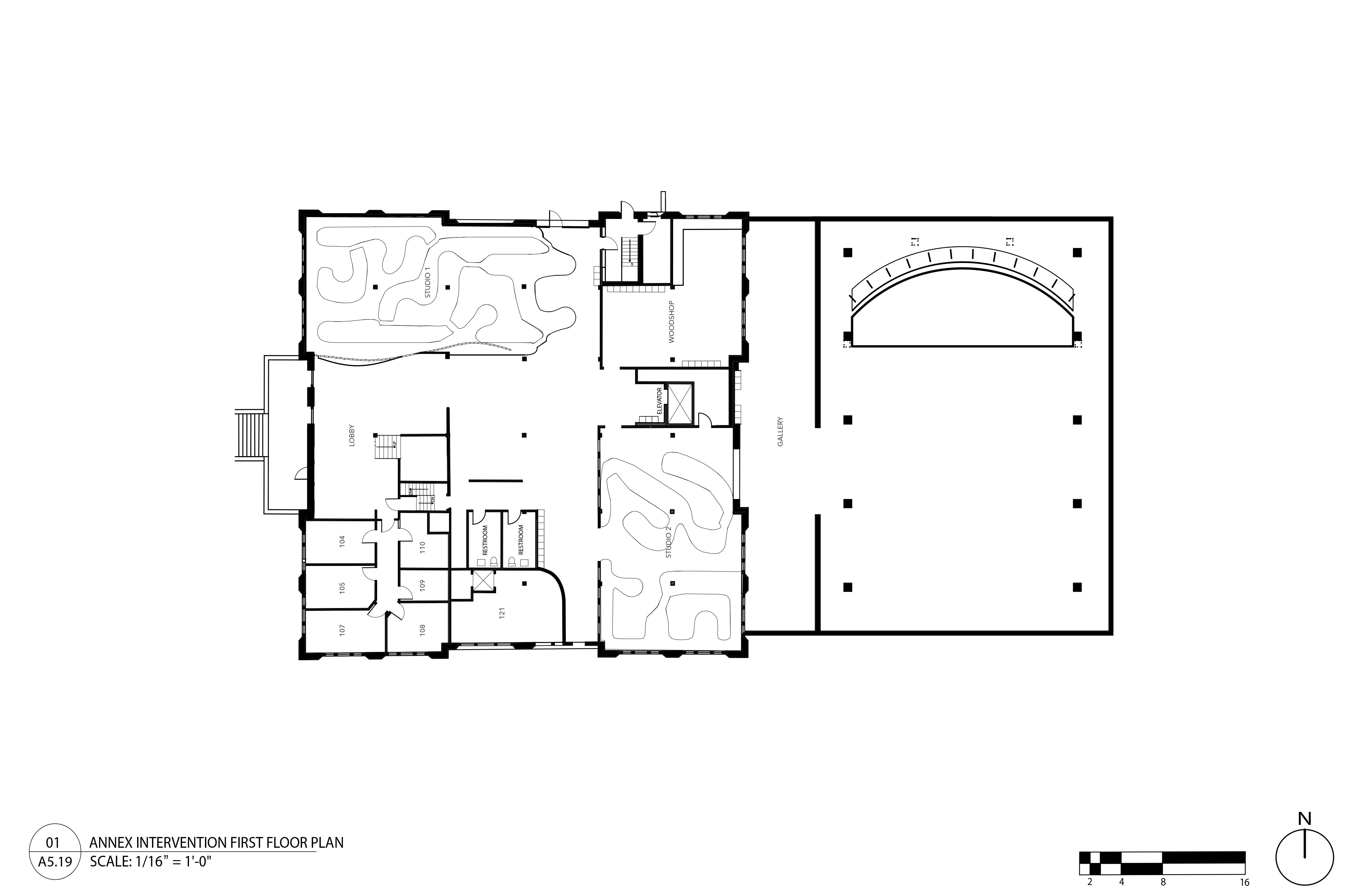
Bridge connecting to the Fab Lab, Pinup Gallery, Material Library, Project Projection Space, Student Lounge, Outdoor Lounge Space, and an arrayed timber figure to guide people throughout the connecting spaces.
Central installation abstracts the trajectory of falling foliage, serving as a spatial node for the Annex.In the main lobby, a parametric brick screen utilizes algorithmic rotation to visualize invisible wind currents, evoking a sense of turbulence.On the second level, pivoting glass louvers overlook the studio void, acting as a kinetic sculpture shaped by airflow.Unifying the different workspaces and the new bridge connection is a rhythmic array of timber ribs. This intervention takes on an organic form that mimics the flow of air, gently guiding movement through the studio. The spaced out beams create a defined corridor that simultaneously allows for light, views, and openness across the second floor.
(Modeled in Rhino 8, Rendered in Twinmotion, Post-Processing in Photoshop)